Образцы документов
Образцы протоколов, размещенные на сайте Фонда, носят рекомендательный характер.
При принятии решений и оформлении протоколов общих собраний собственников помещений в многоквартирных домах необходимо руководствоваться требованиями Жилищного кодекса РФ и приказом Министерства строительства и жилищно-коммунального хозяйства Российской Федерации от 30.04.2025 № 266/пр «Об утверждении Требований к оформлению протокола общего собрания собственников помещений в многоквартирном доме и Порядка направления подлинников решений и протокола общего собрания собственников помещений в многоквартирном доме в уполномоченный исполнительный орган субъекта Российской Федерации, осуществляющий государственный жилищный надзор».
Протоколы Протоколы
Заявления Заявления
Разное Разное
Квитанции Квитанции
платежный документ включает 3 услуги:
• отопление (ГУП "ТЭК СПб")
• электричество (АО "ПСК ")
• взнос на капитальный ремонт (НО "ФКР МКД СПб")
платежный документ включает 2 услуги:
• электричество (АО "ПСК")
• взнос на капитальный ремонт (НО "ФКР МКД СПб")
платежный документ включает
1 услугу:
• взнос на капитальный ремонт (НО "ФКР МКД СПб")
Образец квитанции ЕИРЦ (ЕПД) 1-й вариант
Пример платежного документа, формируемого Акционерным обществом «Единый информационно-расчетный центр Петроэлектросбыт», в котором включена строка «взнос на капитальный ремонт»платежный документ включает 3 услуги:
• отопление (ГУП "ТЭК СПб")
• электричество (АО "ПСК ")
• взнос на капитальный ремонт (НО "ФКР МКД СПб")
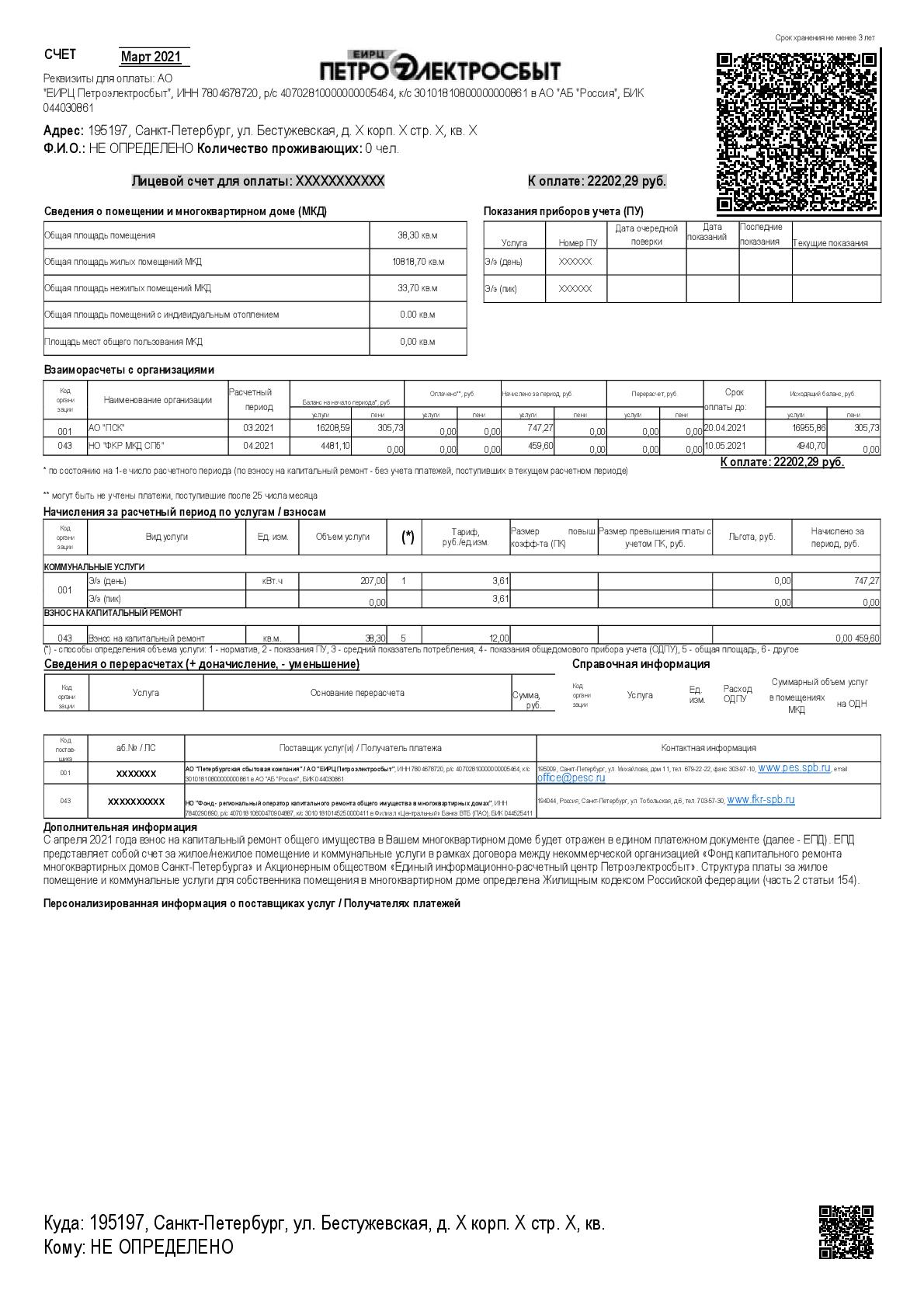
Образец квитанции ЕИРЦ (ЕПД) 2-й вариант
Пример платежного документа, формируемого Акционерным обществом «Единый информационно-расчетный центр Петроэлектросбыт», в котором включена строка «взнос на капитальный ремонт»платежный документ включает 2 услуги:
• электричество (АО "ПСК")
• взнос на капитальный ремонт (НО "ФКР МКД СПб")
Образец квитанции ЕИРЦ (ЕПД) 3-й вариант
Пример платежного документа, формируемого Акционерным обществом «Единый информационно-расчетный центр Петроэлектросбыт», в котором включена строка «взнос на капитальный ремонт»платежный документ включает
1 услугу:
• взнос на капитальный ремонт (НО "ФКР МКД СПб")